静岡市葵区七間町の3LDKの賃貸マンション。
ザ・エンブル七間町(1706) (静岡県静岡市葵区七間町14-1) の物件詳細
| 交通 | 賃料
共益費等 |
礼金 敷金 |
間取 専有面積 |
種類
築年 |
|---|---|---|---|---|
|
JR東海道本線 静岡駅 徒歩13分
静岡鉄道静岡清水線 新静岡駅 徒歩14分 しずてつジャストライン 七間町 徒歩2分 |
26.5万円 0円 |
265,000円 530,000円 |
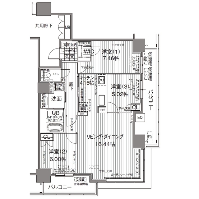
3LDK 84.91㎡ |
賃貸マンション
2017年07月12日 |
PRコメント
築浅分譲賃貸マンション。商業施設多数の静岡駅前が徒歩圏内。静岡市葵区七間町のザ・エンブル七間町。静岡市立葵小学校、静岡市立城内中学校学区の3LDK、26万円〜27万円の賃貸マンションです。JR東海道本線 静岡駅 徒歩13分
静岡鉄道静岡清水線 新静岡駅 徒歩14分、しずてつバス停まで徒歩2分。しずてつストア 宮本町店まで1000m!
部屋の特徴・設備
CATV・オートロック・エレベータ・宅配BOX・上水道・下水道・電気・防犯カメラ・光ファイバー・給湯・シャワー・モニタ付インターホン・室内洗濯機置場・ウォークインクローゼット・システムキッチン・バルコニー・追焚機能・B・T別室・トイレ・洗面所独立・食器洗浄乾燥機・浴室乾燥機・IHクッキングヒータ・ディスポーザー・温水洗浄便座・シューズボックス
物件概要
| 所在地 | 静岡県静岡市葵区七間町14-1 | ||
|---|---|---|---|
| 問い合わせ番号 | 13776-3 | 駐車場 |
有 |
| 入居可能日 | 2026年5月初旬入居可能 | 契約期間 |
定期借家契約:2年 |
| 損害保険 | 要加入(駐車場単体契約除く) | 更新 | 随時 |
| 階数 | 27階建て 17階部分 | 総戸数 | 170戸 |
| 構造 | 鉄筋コンクリート | 取引態様 | 一般媒介 |
| 学区 |
小学校:静岡市立葵小学校 1400m 中学校:静岡市立城内中学校 950m |
免許番号 | 株式会社第一不動産 静岡(10)第5704号 |
| 所属団体 | 全日本不動産協会 静岡県本部・東海不動産公正取引協議会 | ||
| 駐車料 | 15,000円 | 仲介手数料 | 308,000円(税込) |
| その他一時金8 | 22,000円(税込) | ||
| 備考 |
賃貸保証審査有 共益費込 P有(駐車場のみの解約不可) 鍵交換代22,000円(税込) 入居者安心サポートには火災保険・くらしーど24・各種優待サービスが含まれております
賃貸の契約金をクレジットカードで決済できます。 |
||
| めやす賃料 | 276,041円 |
|---|
- めやす賃料とは賃料、共益費・管理費、敷引金、礼金、更新料を含み、 賃料等条件の改定がないものと仮定して
4年間賃借した場合(定期借家の場合は、契約期間)の1ヶ月当たりの金額です。 - ※ 敷引金は、敷金の償却、保証金の償却など、預かった金銭から必ず差し引くものをいいます。
- ※ めやす賃料は、消費者に適切な情報を提供するための表示であり、事業者に一時金を推奨するものではありません。
- ※ めやす賃料は、実際の総支払額と異なる場合があります。詳しくは、不動産会社にご確認ください。
| 周辺地図
マーカーの場所はgoogleマップで自動表示されたものです。
|
|---|





























